
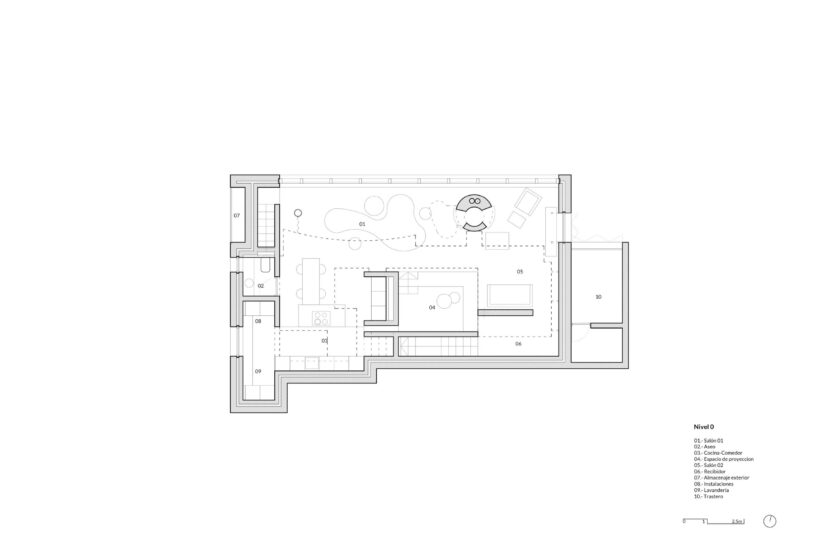
the north facade features a double-height glass opening framing the landscape

an ascending interior layout transitions from social to private spaces
KEEP UP WITH OUR DAILY AND WEEKLY NEWSLETTERS
happening now! SICIS brings the intricate art of mosaic and innovative materials to interior design, harmonizing every element — from furniture to surfaces — for complete environments.
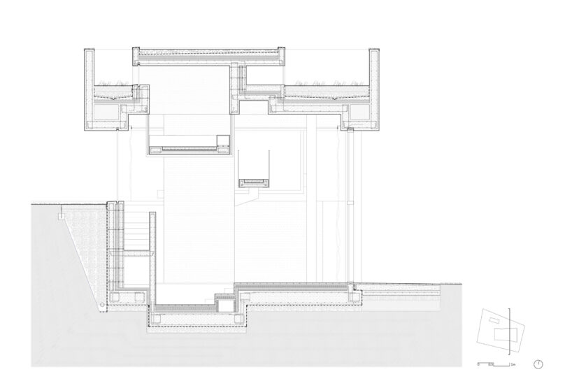
the villa’s bowl-shaped structure draws visitors inward, while still opening outward to the ocean horizon.
as LACMA ramps up toward its 2026 opening, more previews will be announced, and the installation of its permanent collection will begin later this year.
elevated structures provide protection against flooding and seasonal surges.
connections: +390
the grand palais fully reopens following a major transformation that improves public access and brings back long-concealed architectural elements.
 

























